NHÀ NGHĨ DƯỠNG CUỐI TUẦN _

NHÀ NGHĨ DƯỠNG CUỐI TUẦN _

NHÀ NGHĨ DƯỠNG CUỐI TUẦN _

Anmien architecture

Anmien architecture
Anmien architecture

NHÀ NGHĨ DƯỠNG CUỐI TUẦN _

"Một bản nhạc giao hưởng hay _ một không gian tĩnh lặng"

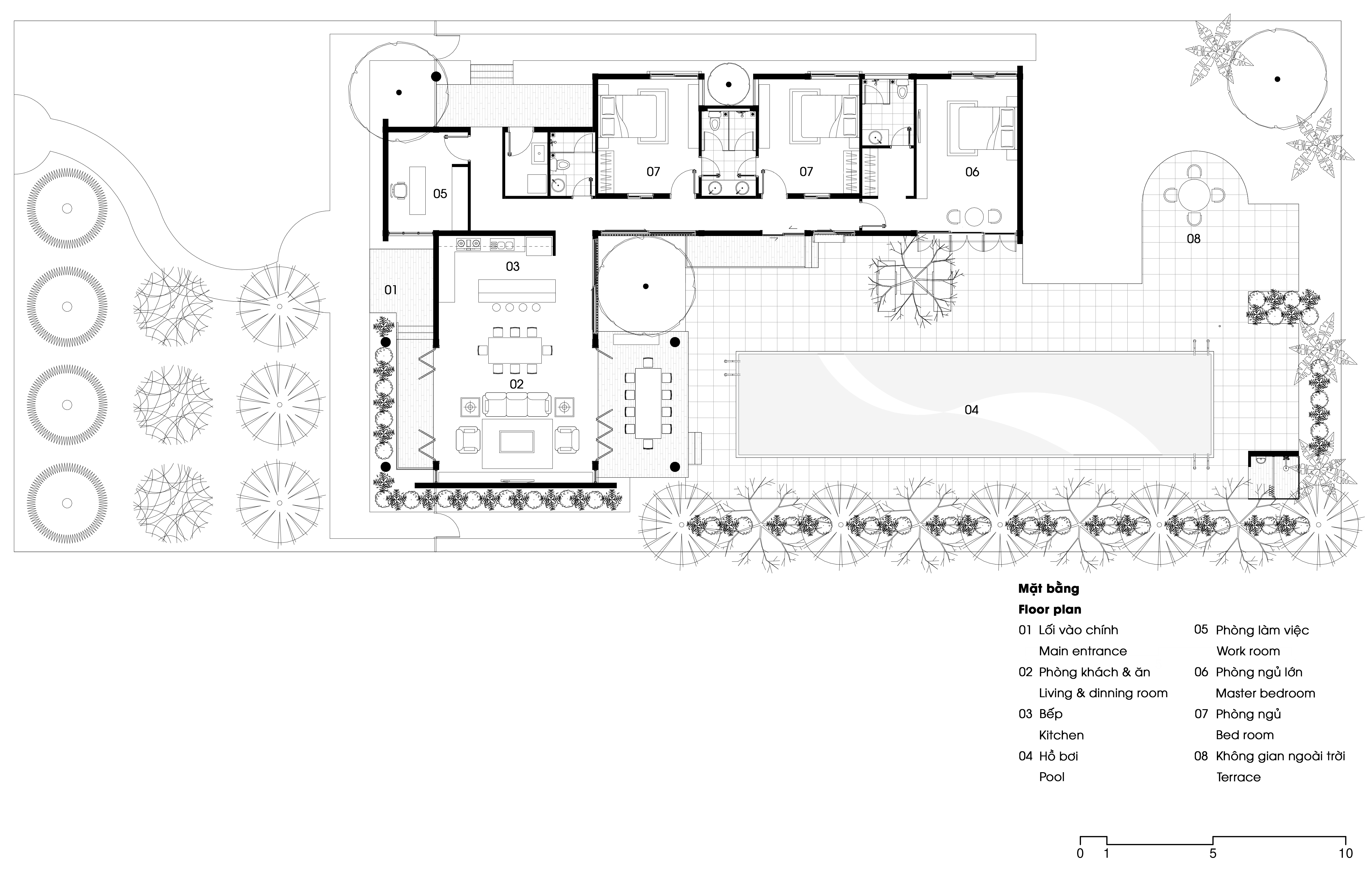
_ The chill house _ Mang đến cho khách hàng một trải nghiệm nghĩ dưỡng sau những căng thẳng trong công việc, cuộc sống. Được sống trong môi trường hòa hợp với thiên nhiên mọi căng thẳng, mệt mỏi của bộn bề cuộc sống được xua tan...

Một thiết kế tinh giản hòa quện giữa con người và thiên nhiên. Tạo ra một không gian nghĩ dưỡng mang đầy sự trong trẻo. Một khái niệm mới trong thiết kế kiến trúc. Kết nối con người với thiên nhiên...

Kiến trúc sư : KTS.Phạm Quốc Phong , KTS.Bùi Đức Tước Vy

Năm thiết kế : 04_2018

Địa điểm : Bến Lức, Long An

© Copyright 2021 Anmien architecture - Design by IVG WEB
×
Đăng nhập

Đăng nhập

Bạn chưa có tài khoản ? Đăng ký

Quên mật khẩu

Đăng ký tài khoản

security

Đăng ký

Bạn đã có tài khoản ? Đăng nhập

Khôi phục mật khẩu
captcha

Lấy mật khẩu

Bạn chưa có tài khoản ? Đăng ký